PDF快速看图是一款PDF阅读器,专为建筑行业量身打造,高性能的看图引擎能轻松应对大型图纸,解决了建筑行业PDF图纸难测量的问题,内置多种测量工具,可以测量长度、面积等各种常用参数,具备强大的标注功能,在浏览时快速标记重要位置,软件体积轻巧,启动速度快,浏览流畅,让建筑图纸的查看与处理变得轻松高效。
PDF快速看图批量提取表格教程
1、首先确认软件已经升级到了最新版本
2、打开一个多页在同一位置都有表格的PDF

3、点击菜单栏“OCR”按钮的下拉功能“批量提取表格”

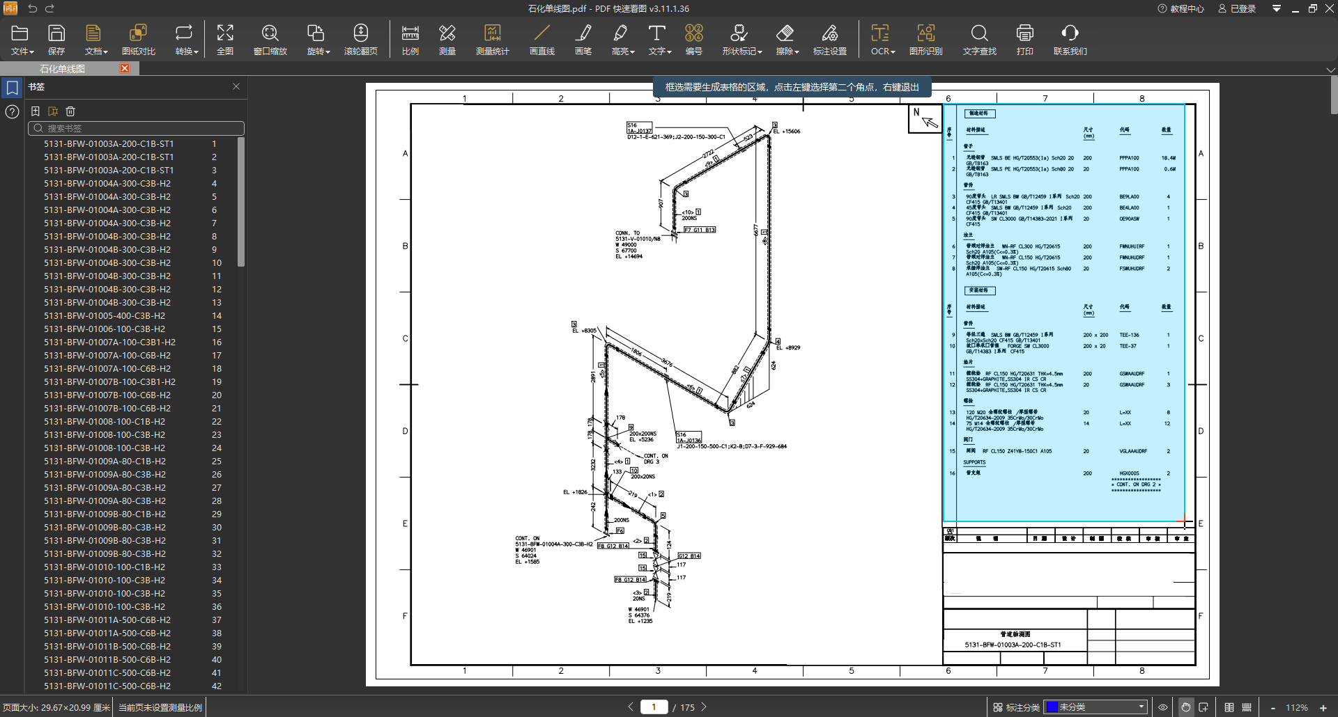
4、框选需要提取的表格范围,为了兼容其他页的表格长短不一的情况,可以尽可能将表格框选得大一些,但不要框选到无关信息

5、框选完成后,弹出批量提取表格弹窗,在弹窗中设置批量提取表格的各个设置,设置完成批量提取表格后,点击“开始提取”,即弹出批量提取表格的进度条

软件功能
1. 测量功能丰富:可测量长度、面积、角度、半径等,还能计数。
2. 视图操作便捷:支持缩放、旋转、查看全图、窗口缩放等功能。
3. 标注工具多样:提供编号、直线、文字、画笔、高亮等标注方式。
4. 格式转换实用:实现PDF与图片、CAD等格式的相互转换。
5. 图纸管理高效:能合并、拆分、提取、删除、插入PDF页面。
软件特点
1. 启动浏览快速:启动速度快,浏览大图流畅,专为建筑图纸优化。
2. 测量精准便捷:解决PDF图纸无比例尺问题,测量操作方便。
3. 界面简洁友好:操作简单易上手,界面清晰,功能布局合理。
4. 功能集成全面:集测量、标注、转换、管理等多功能于一体。
5. 支持多种设备:可在不同设备上使用,满足多样化办公需求。
更新日志
新增功能:
缩略图功能
支持拖动书签
优化功能:
打印效率和效果优化




