
ViewCompanion pro(plt文件查看器)特色
1、观察
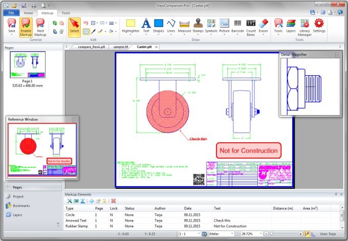
ViewCompanion将让您快速准确地查看文件。通过使用鼠标和键盘,您可以完全控制缩放和平移。您还可以找到高级查看功能,如放大镜、概览窗口、比较、旋转和镜像。您可以在单色、彩色和灰度视图模式之间切换。
2、标记和注释
使用ViewCompanion Pro,您可以向加载的文件添加标记,这一过程通常也称为注释。支持的注释元素范围包括图章、文本、符号、尺寸线、面积测量、矩形、圆形、直线、多边形、箭头和图片。您可以使用预定义的图章之一,或者创建自己的图章。
用户定义的符号库便于添加常用符号作为标记。
所有标记元素都存储在单独的文件中,原始文件不会被修改。
当打印或转换文件时,用户可以控制是否应该包含标记。
3、测量和起飞
使用ViewCompanion,您可以使用捕捉到绘图几何图形来进行精确的距离和面积测量。测量工具的校准可用于提供正确的结果,即使您的绘图不在正确的比例范围内。测量工具可以用来做数量和测量起飞,结果可以导出到例如Excel。
4、印刷
ViewCompanion具有完整的打印支持,包括批量打印、n-up打印和海报打印。打印缩放或适合页面的文档。向打印的文档添加自定义水印、横幅、页眉和页脚。打印整个文档或只打印显示的部分。
ViewCompanion pro(plt文件查看器)转换格式
1、Adobe PDF
2、Adobe PostScript
3、Autodesk DWF
4、Autodesk DXF
5、全组4光栅
6、CGM(计算机图形图元文件)
7、格柏rs-274x
8、JPEG栅格
9、绘图软件
10、PNG光栅
11、可升级矢量图形(SVG)
12、TIFF光栅
13、Windows图元文件
14、Windows位图
15、windows增强型图元文件
ViewCompanion pro(plt文件查看器)支持的操作系统
• Windows Vista, 32 and 64 bit.
• Windows 7, 32 and 64 bit.
• Windows 8, 32 and 64 bit.
• Windows 8.1, 32 and 64 bit.
• Windows 10, 32 and 64 bit.
• Windows Server 2003
• Windows Server 2008
• Windows Server 2012
• Supports Terminal Server and Citrix.
ViewCompanion pro(plt文件查看器)功能
1、转换文件可以被用户自由的缩放
2、在它的所支持的转换标准列表中又增加了3个新的文件标准
3、用户现在可以转换所有的HPGL-2文件到autodesk dxf文件
4、它可以非常容易的从所有主要的CAD应用软件中读出文件
5、PDF和DWF标准支持可以使用户在WEB上自由的发布文件
3、为CAD/CAM市场提供了更强大的特征和功能性
7、其他改进包括:可视化控制,导航参考,放大窗口,实体查询能力,测量功能